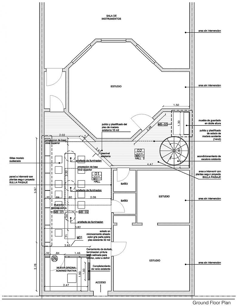
Сегодня для посетителей Форум-Град мы откроем двери офиса удивительной музыкальной студии Animal Music. В 2011 году аргентинская архитектурная фирма Nidolab завершила создание проекта под названием Энимал мьюзик (Animal Music). Современный офис, занимающий 120 квадратных метров, находится в Буэнос-Айресе в Аргентине. В нем располагается звукозаписывающая студия. Архитекторы воплотили идею максимального использования пространства помещения. Длинный, высокий стол, расположенный в одной из комнат, служит для переговоров с клиентами и одновременно является обеденным. Чтобы посетителям студии не было скучно в ожидании встречи, на стену повесили полки, где поместили книги, картины и интересные декоративные предметы.
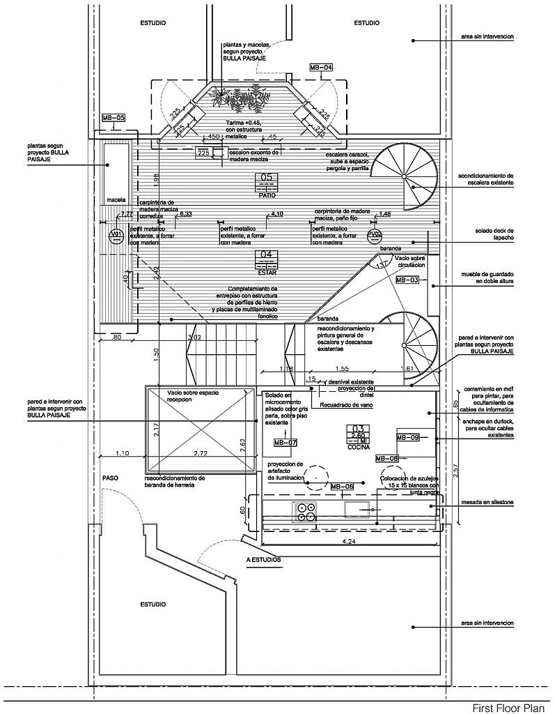
Можно немного расслабиться и уединиться, пройдя через холл на открытую террасу. Там светло и солнечно благодаря панорамным мансардным окнам. Обстановка в Animal Music получилась не только уютная, но и яркая, элегантная и эксклюзивная. Представьте, уважаемые читатели Форум-Град, помещение, обставленное деревянной мебелью с черными контрастными деталями интерьера. Впечатляет? Ультрасовременный стиль офиса прекрасно подходит для активных людей из мира музыкального бизнеса. Если вы, читатель Форум-Град, тоже меломан и творческий человек, то эта студия не только произведет на вас впечатление, но и поможет реализовать свои музыкальные способности и таланты.



























