Для тех из вас, дорогие читатели Форум-Град, кому интересно узнать о том, как сегодня живут известные творческие люди, мы подготовили интересный материал. В 2008 году архитекторами David Berridge Architect был создан новый проект для жизни и творчества современной художницы Дженнифер Бартлетт (Jennifer Bartlett), живущей в окрестностях Clinton Hill в Бруклине в Нью-Йорке (США). Строение было реорганизовано из старого промышленного здания 19 века. В работе над дизайном будущая хозяйка принимала активное участие.Благодаря совместным усилиям, огромное здание в 510 кв. метров превратилось в уютное стильное жилище и одновременно студию с персональной картинной галереей.
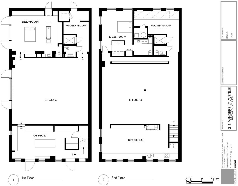
Организация единого пространства для личной и творческой жизни было главным требованием заказчика. С этой целью на обоих этажах здания были снесены некоторые лишние стены. Помимо традиционных спален и кухни в доме имеется мастерская, кабинет и две студии. Оформление выполнено из дерева, современных искусственных материалов, металла и даже цветной мексиканской плитки. Приятно дополняет новую резиденцию вид из окон, открывающийся во внутренний зеленый сад.Теперь, уважаемые читатели Форум-Град, вы имеете визуальное представление о том, как живут и творят наши современные востребованные таланты.
















